SOLD
50 Curzon St., Townhouse 515
Modern Townhouse In The Heart Of Leslieville
“Townhouse 515 is where modern design meets effortless comfort — with sun-filled spaces, flexible rooms for every chapter of life, and a rooftop terrace that turns everyday moments into something special.”
Property Information

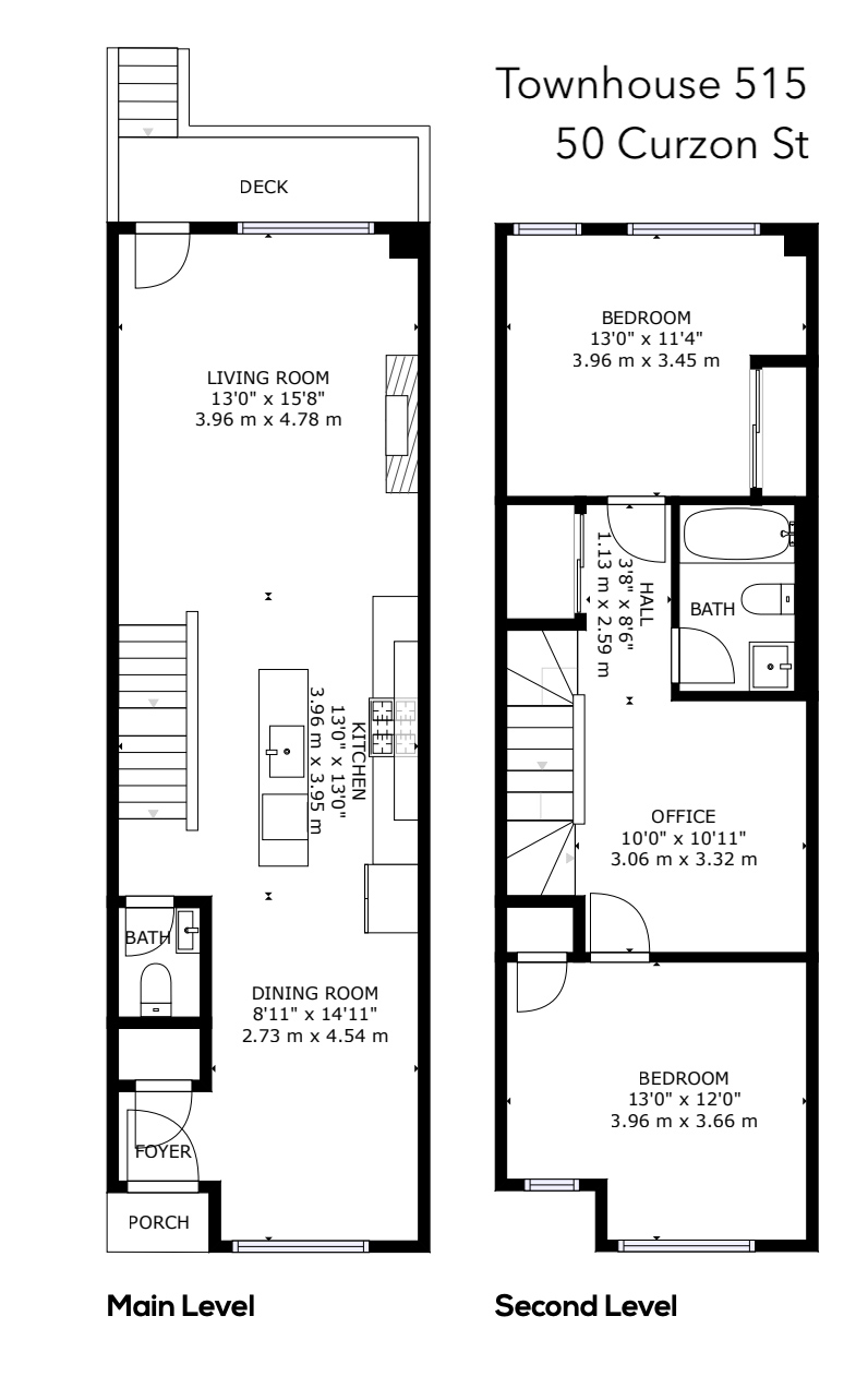
Experience modern living at Town 515, nestled in trendy Leslieville in one of the most close-knit Townhouse communities. With a contemporary and functional design, 515 has 2,350 sq ft of living space and a 520 sq ft rooftop terrace, so spending time at home is something to look forward to!

This home welcomes you into a spacious light-filled main floor, instantly creating an atmosphere worthy of entertaining guests. The updated kitchen quickly draws attention with warm, neutral-coloured finishes, extended countertop surfaces, increased storage space, and stainless-steel appliances. Functionality and beauty go hand-in-hand making it the perfect epicenter of the home.


The open living room features an electric fireplace and a walkout to the deck, which includes a gas line for an easy BBQ setup. As you head to the stairs, custom glass partitions take the place of a traditional railing and expand the open, airy feel of the home. Once upstairs you’ll find two bright and sizeable bedrooms connected by a spacious den, and complemented by a 4-piece bathroom. With enough room in the bedrooms to include areas for studying, the den allows for a flexible layout, doubling as an entertainment area for playing or watching TV.


The 375 sq ft basement is flexible enough to function as a playroom for children, a workshop, or even a studio. This space can be transformed to suit your needs!
Surrounded by privacy and on its own separate level, we find the master suite. Your refuge to the ordinary existence, this is a versatile space comfortably sized for working, relaxing, exercising and of course, sleeping! A large walk-through closet is a blank canvas looking forward to welcoming all of your favourite clothing and accessories. As a final highlight of the master suite, the spa-inspired bathroom features a double sink vanity with boudoir and extended mirror, and inviting soaker tub with a doorless rain shower.
Head to the very top to find the rooftop terrace where two separate areas are ready for you to entertain and unwind. Make use of this incredible outdoor space on summer nights and relish in your beautiful home.
Take A 3D Tour
Please use a browser other than Chrome to view the 3D tour.
.jpg)
The Building: Wrigley Lofts
Completed in the spring of 1916 in the Beaux Arts style used for the Chicago Wrigley’s gum factory, Pract & Perrine designed a “reinforced concrete structure of merit“. A true gem that seamlessly marries history and modernity. Once an integral part of Toronto’s industrial heritage, Wrigley Lofts was brilliantly transformed into a haven for those seeking a unique and dynamic living experience.
The building stands as a testament to the city’s rich industrial past. Located in Leslieville, it is part of a collection of former factory, warehouse, and garage buildings that defined the area’s manufacturing hub during the early 20th century. The building carries a rich legacy that is woven into its very bricks and beams.
The lofts themselves are a masterpiece of design and preservation. Featuring high ceilings with exposed ductwork, rugged brick walls, and expansive industrial windows, the hard loft aesthetic is vividly present.
The loft spaces are not just homes but also functional workspaces. Wrigley Lofts embraces the live/work concept offering residents a versatile and creative environment. This flexibility is ideal for artists, entrepreneurs, and professionals who seek to integrate their work into their daily lives.
The large industrial windows are designed to bathe the interior spaces with an abundance of natural light. These windows not only illuminate the lofts but also provide scenic views of the surrounding neighborhood, fostering an inspiring atmosphere.
The lofts offer generous square footage, ensuring that residents have ample room to customize and create a space that reflects their unique style. The high ceilings further enhance the sense of space, providing an open and airy feel.
Beyond its aesthetic and functional appeal, Wrigley Lofts fosters a sense of community where residents often share a passion for art, creativity, and a love for urban living. This shared spirit of creativity and innovation is nurtured within its walls!
Wrigley Lofts is a living canvas where history and modern living converge. It provides a unique opportunity to own a piece of Toronto’s past while enjoying the conveniences of the present. It’s a place where the artistic, the innovative, and the urban enthusiast find a place to call home, and where history and contemporary living harmoniously coexist.


“Leslieville is vibrant, creative, and full of heart — a community of parks, great schools, local gems, and that unmistakable East End charm that makes it one of Toronto’s most beloved neighbourhoods.”
From the Seller
The Neighbourhood: Leslieville
Welcome to Leslieville, one of the most desirable and historical neighbourhoods where you will be able to set roots and live surrounded by highly-ranked schools, parks and a diverse community. Enjoy its increasing offering of restaurants, cafés and shops along Queen Street East or simply wind down and delight in appreciating Victorian and Edwardian architecture while strolling around. Take pleasure in original theatre works at Crow’s Theatre, share with friends at one of the terraces of the recently renovated Broadview Hotel and take advantage of the proximity to East Chinatown, the Gerrard India Bazaar and The Beaches, among other interesting pockets in the area. Connectivity is at its best through major avenues and streets that provide easy access to Toronto’s Downtown, East-end, West and North York. Indulge in living near green spaces like Withrow Park, Riverdale Park East, Jimmy Simpson Park and Greenwood Park that will heighten your senses and inspire you to live a healthier life. Take our word for it, once you’re here you will not want to leave!
Full Gallery

© 2025 CASTILLO + PARDO | RE/MAX Hallmark Realty, Ltd.
Website Created by BLOOM Virtual Co

SELL WITH US
BUY WITH US











































